Phụ Kiện Bàn Mở Rộng Tự Nâng Đỡ 1200mm Hafele 505.73.946
- Tình trạng:
- Mã QR:
- Mã sản phẩm: 50573946
- Đơn vị tính:
- Bộ
- Bảo Hành:
- 1 Năm
- Giao Hàng:
- Miễn Phí Toàn Quốc
- Liên Hệ:
- Để Có Giá Tốt Hơn
Đặc điểm bộ phụ kiện bàn mở rộng Hafele 505.73.946 :
- Bàn kéo được lắp đặt thay cho ngăn kéo, tạo bề mặt đồng nhất
- Dành tối đa cho 5 người ngồi
- Còn 100 sp - Điện thoại::0392386116 - 798 Lạc Long Quân - Phường 9, - Hafele Tân Bình
Phụ Kiện Bàn Mở Rộng Tự Nâng Đỡ 1200mm Hafele 505.73.946
Tính Năng :
- Bộ phụ kiện bàn mở rộng tự nâng đỡ
- Ứng dụng : làm nội thất cho bếp và phòng khách, lắp đặt phía sau cửa trước của ngăn kéo gấp
- Chất liệu : thanh dẫn hướng nhôm, bộ phận lắp đặt thép
- Lớp phủ hoàn thiện : thanh dẫn hướng mạ màu bạc anode, bộ phận lắp đặt mạ kẽm
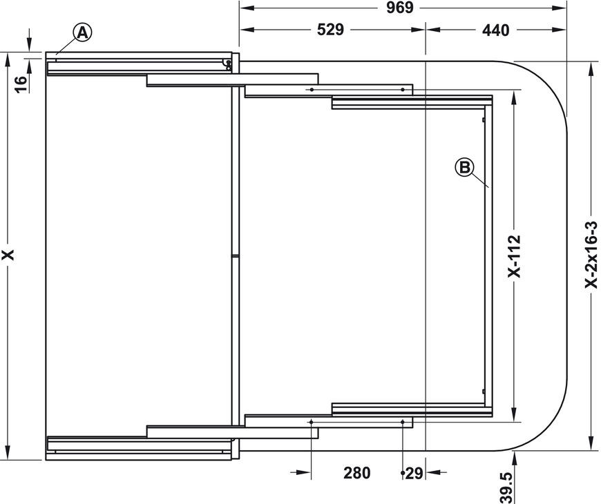
- Chiều sâu lắp đặt tối thiểu : 540mm
- Chiều rộng khoang tủ 1200mm
- Kích thước : mặt bàn chiều dài 969mm, chiều rộng mặt bàn = chiều rộng khoang tủ - 3mm
- Tải trọng : 60Kg
- Trọn bộ gồm : 1 cặp thanh ray, phụ kiện cố định, hướng dẫn lắp đặt, không bao gồm mặt bàn
- Chú ý : Cố định tủ chắc chắn để tránh nguy cơ bị nghiêng, đổ. Bộ phụ kiện phù hợp cho các mặt bên có độ dày A 16mm, thanh nối B phải được rút ngắn đi 1,5mm ở cả 2 bên khi sử dụng mặt bên có độ dày 19mm
Đặc điểm bộ phụ kiện bàn mở rộng Hafele 505.73.946 :
- Bàn kéo được lắp đặt thay cho ngăn kéo, tạo bề mặt đồng nhất
- Dành tối đa cho 5 người ngồi









